31
$3,000 Rent
Listed 3 hours ago
577 Mackechnie Crescent
· 3+1
· 2
· 1
· 700-1100
Listing History
Buy/Sell/Terminated/Expired listing history for 577 Mackechnie Crescent
Key Facts
Key facts for 577 Mackechnie Crescent
Property Type
House, Bungalow-Raised
Parking
Attached 1 garage, 2 parking
MLS #
X12441708
Size
700-1100 sqft
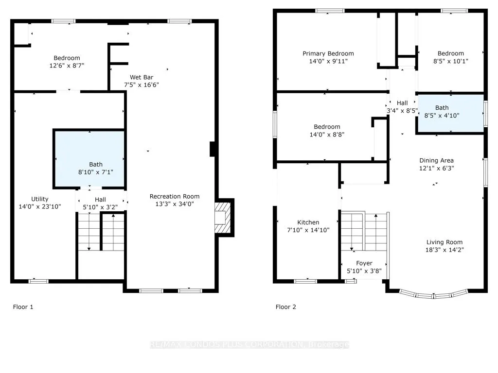
Basement
Full,Finished
Listed on
2025-10-02
Lot size
50 x 125.0
Tax
-
Days on Market
1
Approximate Age
-
Maintenance Fee
- Parking
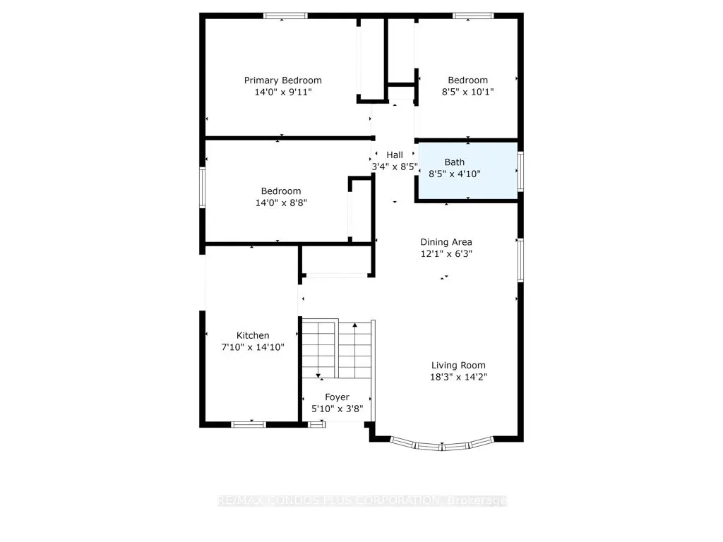
Description
Welcome to your little slice of serenity - this 3 + 1 bedroom home has just been updated (freshly painted, new flooring and counters + much more) and is awaiting a new family to settle in and enjoy all it has to offer. Located on a very quiet crescent on a large lot, there are plenty of trees for pr...ivacy in the large, fully fenced back yard with new deck. There is a garage and private double wide, concrete driveway and the street is quiet with friendly neighbours. This raised bungalow is single floor living with 3 bedrooms and 1 full bathroom on the main floor but there is also a very large finished basement with wet bar, gas fireplace, a 4th bedroom and 3pc bathroom. There is ample storage space and laundry (2024). Forced air furnace and central a/c make every season easy and comfortable. The owner loved their time in this space and is hoping for the next people to love it and care for it just as much - come see if it's a good match for you! Very convenient location close to shopping and downtown as well as the highway for a quick commute.
Similar Properties (No results)
Courtesy of: RE/MAX CONDOS PLUS CORPORATION